协会服务热线:020-29126333

GB/T9966.5-2020-天然石材试验方法第5部分 硬度试验

 二维码


前 言

GB/T9966《天然石材试验方法》共分为18个部分:

第 1部分:干燥、水饱和、冻融循环后压缩强度试验;

第 2部分:干燥、水饱和、冻融循环后弯曲强度试验;

第 3部分:吸水率、体积密度、真密度、真气孔率试验;

第 4部分:耐磨性试验;

第 5部分:硬度试验;

第 6部分:耐酸性试验;

第 7部分:石材挂件组合单元挂装强度试验;

第 8部分:用均匀静态压差检测石材挂装系统结构强度试验;

第 9部分:(通过测量共振基本频率)测定动力弹性模数;

第 10部分:挂件组合单元抗震性能的测定;

第 11部分:激冷激热加速老化强度测定;

第 12部分:静态弹性模数的测定;

第 13部分:毛细吸水系数的测定;

第 14部分:耐断裂能量的测定;

第 15部分:耐盐雾老化强度测定;

第 16部分:线性热膨胀系数的测定;

第 17部分:盐结晶强度的测定;

第 18部分:岩相分析。

本部分为 GB/T9966的第5部分。

本部分按照GB/T1.1—2009给出的规则起草。

本部分代替GB/T9966.5—2001《天然饰面石材试验方法 第5部分:肖氏硬度试验方法》。本部分与GB/T9966.5—2001相比,除编辑性修改外,主要技术变化如下:

增加了规范性引用文件(见第2章);

增加了莫氏硬度试验方法内容(见3章);

试样干燥由105℃±2℃干燥24h修改为65℃±5℃干燥48h(见4.2.3、4.4.1,2001年版的3.3、5.1);

删除了试样光泽度值的要求(见2001年版的4.3);

增加了试验报告的部分内容(见第5章,2001年版的第7章)。

本部分由中国建筑材料联合会提出。

本部分由全国石材标准化技术委员会(SAC/TC460)归口。

本部分起草单位:中材人工晶体研究院有限公司、北京中材人工晶体研究院有限公司、环球石材(福建)有限公司。

本部分主要起草人:周俊兴、余泉、宫月、李文洪、刘武强、黄勇。

本部分所代替标准的历次版本发布情况为:

GB/T9966.5—1988、GB/T9966.5—2001。

1 范围

GB/T9966的本部分规定了天然石材硬度试验的原理、仪器设备、试验样品、试验步骤、试验结果和试验报告。

本部分适用于天然石材硬度的测定。

2 规范性引用文件

下列文件对于本文件的应用是必不可少的。凡是注日期的引用文件,仅注日期的版本适用于本文件。凡是不注日期的引用文件,其最新版本(包括所有的修改单)适用于本文件。

GB/T17670 天然石材统一编号

3 莫氏硬度

3.1 原理

选用10种矿石作为硬度标准,按硬度大小顺序分为10级(见表1),以在试样上产生明显划痕的硬度标准最小等级作为该试样的相对硬度。

3.2 仪器设备

莫氏硬度计:10种硬度标准矿物,见表1。

表1 莫氏硬度表

硬度等级

1

2

3

4

5

6

7

8

9

10

矿石名称

滑石

石膏

方解石

萤石

磷灰石

正长石

石英

黄玉

刚玉

金刚石

3.3 试验样品

长宽尺寸为100mm×100mm的试样三块,其中试验表面应打磨成镜面或细面。

3 . 4 试验步骤

将试样平稳放置在坚硬、稳固的支撑物上,饰面朝上。从小到大选用不同的标准划痕矿石,用手均匀用力将标准划痕矿石的一个新刃口垂直地对试样饰面进行刻划。刻划时手持标准划痕矿石,手腕不动,以手臂平移方式带动握住标准划痕矿石的手,直到试样表面出现清晰的单线状刻划痕迹为止。对试样施力要适度,标准划痕矿石的刃口不应因施力过大破碎而形成双线状甚至是多线状刻划痕迹。每件试样重复四次刻划,目测试样表面的划痕,以在试样上产生明显划痕的硬度标准最小等级作为该试样的莫氏硬度。

3.5 试验结果

取三块试样硬度最小级作为试验结果。

4 肖氏硬度

4.1 原理

将规定形状的金刚石冲头从固定高度自由下落到试样的表面上,用冲头回弹高度与下落高度的比值评价石材的硬度。

按式(1)计算肖氏硬度:


式中:

HS肖氏硬度;

K肖氏硬度系数;

h下落高度,单位为毫米(mm);

h0回弹高度,单位为毫米(mm) 。

4.2 仪器设备

4.2.1 D型肖氏硬度计:主要技术参数见表2,其示值误差不大于±2.5。

表2 D型肖氏硬度计技术参数


4.2.2 试验台:质量为4kg。

4.2 .3 干燥箱:温度可控制在65℃±5℃范围内。

4.3 试验样品

4.3.1 试样的长宽尺寸为100mm×100mm,厚度大于10mm。每组三块。

4.3.2 试样应能代表该品种的品质特征,如矿物组成、晶粒分布状态等。

4.3.3 试样上下两面应平行、平整,试验表面为镜面或亚光面。

4.3.4 试验面不应有坑窝、砂眼和裂纹等缺陷。

4.4 试验步骤

4.4.1 将试样置于65℃±5℃的干燥箱内干燥48h后,放入干燥器中冷却至室温。

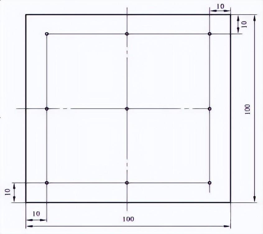
4.4.2 标定试样上测试点的位置,如图1所示。如选定的测试点处在试样的纹理线上,可将其偏移3mm~5mm。测试点距试样边缘的距离应大于10mm。

单位为毫米


说明:

图中“o”为标准测量点。

图1 试样上测试点位置

4.4.3 试验前用标准肖氏硬度块检查硬度计的测量值是否在标准块的允差范围内,调整试验状态。

4.4.4 将试样平放在试验台上,压紧力为200N左右。测试时操作鼓轮的转动速度约为1r/s~2r/s,复位速度约为1r/s~2r/s。

4.4.5 每个试样至少测试九个点,测量值准确到1HSD。

4.5 试验结果

以每组试样肖氏硬度的算术平均值作为该组试样的肖氏硬度。

5 试验报告

试验报告应至少包含以下信息:

a) 按GB/T17670规定的石材的商业名称;

b) 试样数量、规格尺寸,表面处理状况(根据测试需要);

c) 测定实验室的名称、地址,如果试验进行的地点不是测试实验室则应注明试验进行的地点;

d) 试验方法;

e) 试验遵循的标准编号(GB/T9966.5—2020);

f) 试验结果;

g) 试验偏离(如小尺寸、不平整或无光泽的试样)。

素材来源于网络整理。

END