协会服务热线:020-29126333

大理石案例 | 孝感九烨鼎观如院小区大堂、样板间

 二维码
图片


太谷形上设计以一种通透而老练的设计手法,深度重构空间层次与自然意境的交融,匠心独运地展现现代生活的雅致与闲适。在当代设计的语境之中,他们于细微之处精雕细琢,将生活的精致与考究展现得淋漓尽致,深刻诠释了空间的艺术韵味,精心呈现出一部四代住宅的典范之作。

踏入归家大堂,褐茶色的墙面与墨色晕染的大理石地板交相辉映,营造出一种沉稳而又不失韵味的氛围。细节之处,金属海浪造型的艺术品灵动翻涌,仿佛将一片浩瀚海洋的无限遐想,凝固成了一场永不谢幕的梦幻剧场。目光聚焦之处,冰魄绿大理石打造的前台熠熠生辉,为每一次归家的瞬间,都平添了几分盎然生机与诗意浪漫。


Part1
自然万象
小区归家大堂

图片
图片
图片
图片



Part2
自然物语
115户型样板间

图片


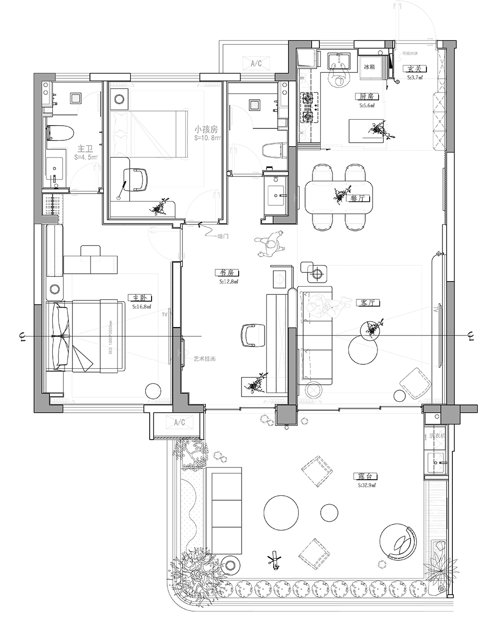
115户型的设计力求满足四代住宅功能需求的同时,像森林一般的色彩,唤醒人们对于自然美好生活的无限遐想,让小户型的空间灵活起来,让业主仿佛徜徉在自然之境。


图片
图片
图片


碧绿波纹的大理石如森林之氧气,于墙面勾勒与自然暧昧的轮廓。


图片
图片


窗外绿意盎然,微风轻拂。角落里的荷边单椅,为整个空间增添了轻盈的氛围让人忍不住想要坐下来,享受这份宁静与美好。


图片
图片
图片
图片
图片
图片
图片
图片
图片
图片


设计图纸

图片
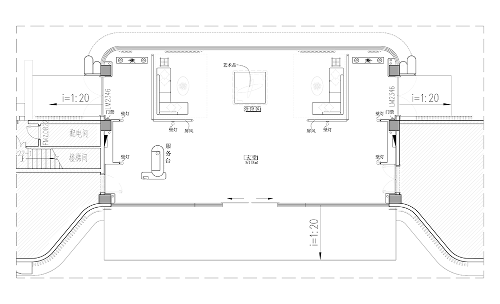
△大堂平面图
图片
△115户型平面图


项目名称:孝感九烨鼎观如院小区大堂、样板间

甲方单位:九烨集团

空间设计:太谷形上

项目面积:小区大堂150㎡、样板间115m²、140㎡

设计团队:王光辉 刘小羿 艾益忠 朱贵敏 肖炜 朱华丽 蒋梁明

项目摄影:悟空间摄影


图片